


Example Kitchen


Every family is different – and your home should reflect that. With a Broadgate home, you’ll have the chance to add personal touches that make it truly yours. From choosing finishes and appliances to enjoying the peace of mind that comes with built-in energy efficiency, this is your opportunity to create a home that feels right from day one.
Make your home feel truly yours with a choice of finishes and optional upgrades. From flooring styles to kitchen worktops, you can add those little details that reflect your taste and lifestyle.
Our properties come with quality integrated appliances as standard. Built for convenience and everyday ease, your kitchen is ready to cook, host and enjoy from the moment you move in.
Whether it’s solar panels, modern insulation or EV charging point (sometimes all three!) all Broadgate Homes are designed with sustainability in mind. Our properties help keep running costs low while future-proofing your home.
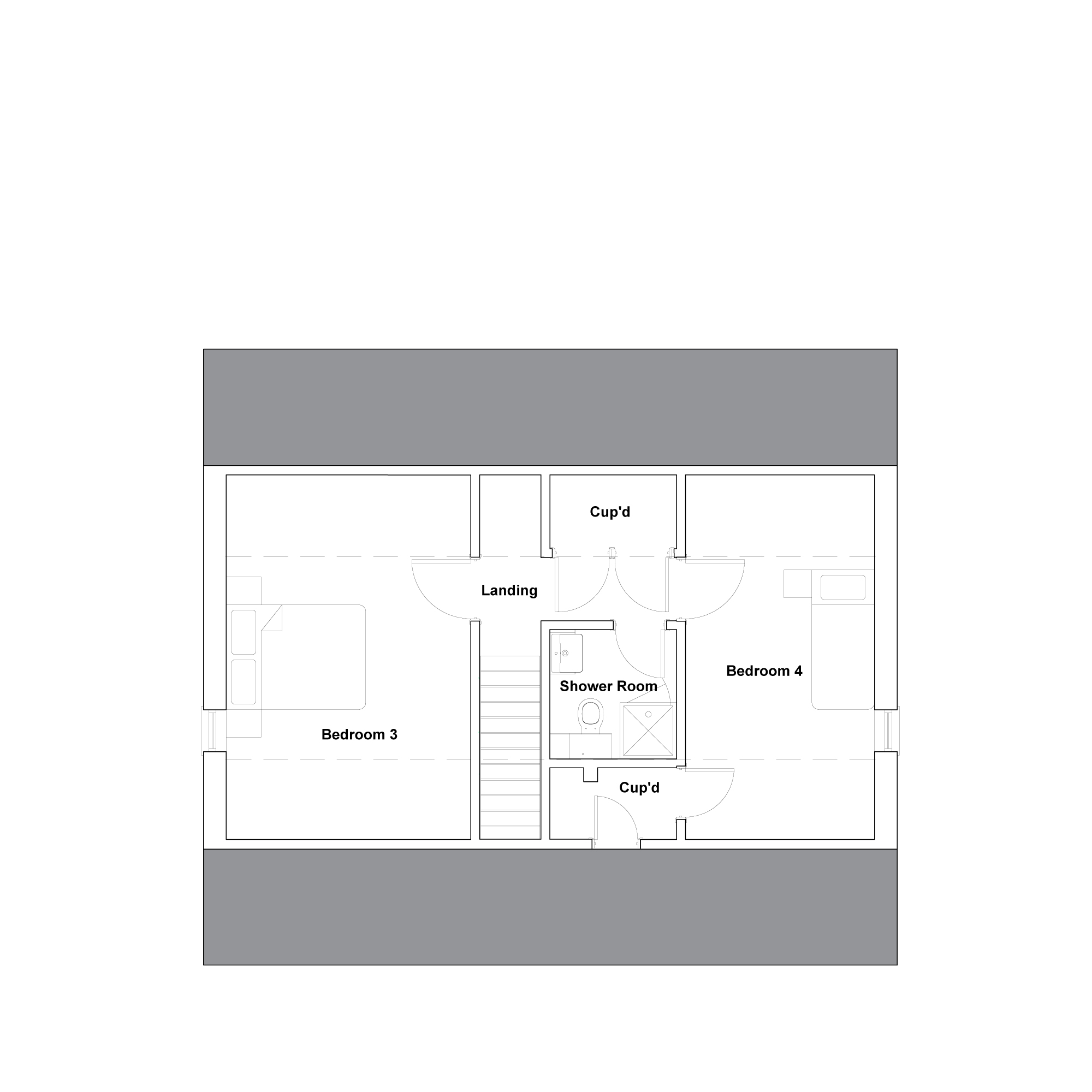
The London has been designed to offer space, flexibility, and a natural flow across three carefully planned floors.
From the entrance hall, you’re welcomed into a front family room – an ideal space for relaxing, working, or spending time together. At the heart of the home, the bright and airy kitchen dining area creates a central hub for everyday life, with French doors opening out onto the rear garden to bring in natural light and extend the space outdoors. A separate utility room adds practicality, while a generous sitting room overlooking the garden offers a quieter place to unwind. A dedicated home office and under-stair storage complete the ground floor, supporting the needs of modern living.
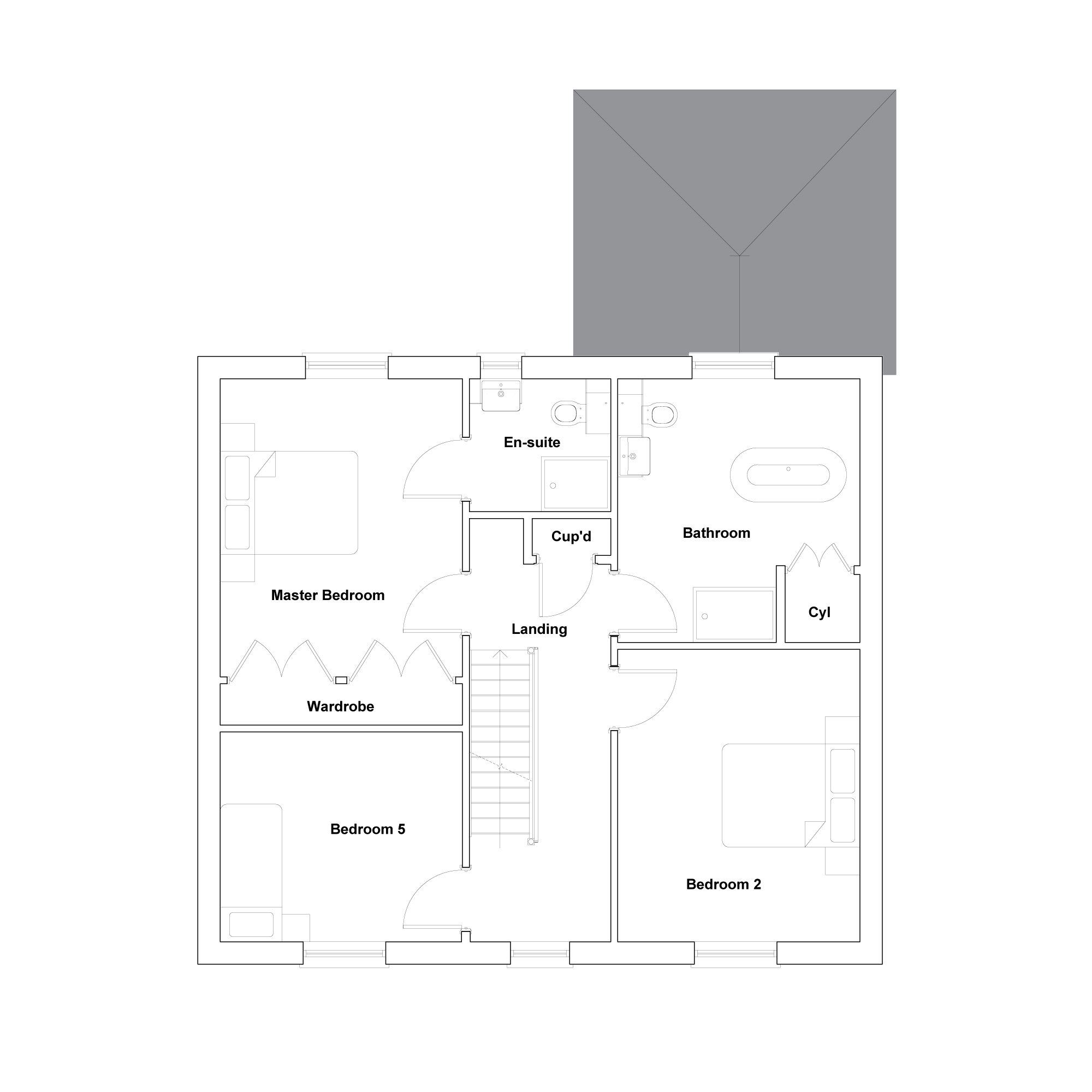
Upstairs, the first floor is home to the master bedroom, featuring built-in wardrobes and a private en-suite, alongside two further well-proportioned bedrooms and a contemporary family bathroom.
Set across three floors, The London offers the flexibility to adapt as your needs change – whether that’s creating additional bedrooms, guest space, or areas to work and relax. It’s a home designed to grow with you, offering both space and comfort in equal measure.
Located within a welcoming Broadgate Homes development, The London offers more than just space – it offers a place to settle and feel at home. With access to local amenities, green spaces, and strong community connections, it’s a setting designed for everyday life.
Moving to The Furlongs should feel exciting – not stressful. That’s why Broadgate offers tailored support to help make your move smooth and certain. Whether you’re a first-time buyer, exploring part-exchange, or using our MoveSmart or Assisted Move options, our team is here to guide you every step of the way.
Woodhall Spa is perfectly placed for peaceful living with excellent links across Lincolnshire and beyond. Lincoln and Boston are both around 30 minutes away by car, while the market towns of Horncastle and Louth are within easy reach for day-to-day shopping and dining. For those who need to travel further afield, Peterborough and Grantham offer direct train services to London King’s Cross in around 55–65 minutes, making commuting or city visits simple and stress-free.
At a glance:
Families are well supported by a choice of highly regarded schools in the area. St Andrew’s CE Primary School sits right in the heart of Woodhall Spa, while Banovallum School and Queen Elizabeth’s Grammar School in Horncastle offer excellent secondary options. For younger learners, several local nurseries provide welcoming early years settings within a short drive of the development.
At a glance:
Known for its leafy avenues and village charm, Woodhall Spa is surrounded by nature. The Pinewoods are just moments away – perfect for weekend walks or quiet evening strolls – and Jubilee Park offers open green space, tennis courts, and a much-loved outdoor pool. The area is also ideal for golfers, with the world-famous Woodhall Spa Golf Club just down the road, home to England Golf’s National Golf Centre.
At a glance:
Rich in history and character, Woodhall Spa blends heritage with modern village life. The beautifully restored Kinema in the Woods is a local treasure, showing films in an old-world cinema setting. Nearby, the Cottage Museum tells the story of the village’s spa-town origins, while the Petwood Hotel, once home to the Dambusters during World War II, remains a striking reminder of the area’s past.
At a glance:
| Cookie | Duration | Description |
|---|---|---|
| cookielawinfo-checkbox-analytics | 11 months | This cookie is set by GDPR Cookie Consent plugin. The cookie is used to store the user consent for the cookies in the category "Analytics". |
| cookielawinfo-checkbox-functional | 11 months | The cookie is set by GDPR cookie consent to record the user consent for the cookies in the category "Functional". |
| cookielawinfo-checkbox-necessary | 11 months | This cookie is set by GDPR Cookie Consent plugin. The cookies is used to store the user consent for the cookies in the category "Necessary". |
| cookielawinfo-checkbox-others | 11 months | This cookie is set by GDPR Cookie Consent plugin. The cookie is used to store the user consent for the cookies in the category "Other. |
| cookielawinfo-checkbox-performance | 11 months | This cookie is set by GDPR Cookie Consent plugin. The cookie is used to store the user consent for the cookies in the category "Performance". |
| viewed_cookie_policy | 11 months | The cookie is set by the GDPR Cookie Consent plugin and is used to store whether or not user has consented to the use of cookies. It does not store any personal data. |